融现代科技·创强大风机品牌
长期专注于民用风机、工业风机领域的标杆企业
融现代科技·创强大风机品牌
长期专注于民用风机、工业风机领域的标杆企业
咨询热线 hotline
027-85574237
133 0717 4160
首页 > · 隧道 · 地铁工业工程风机 >
· 隧道 · 地铁工业工程风机
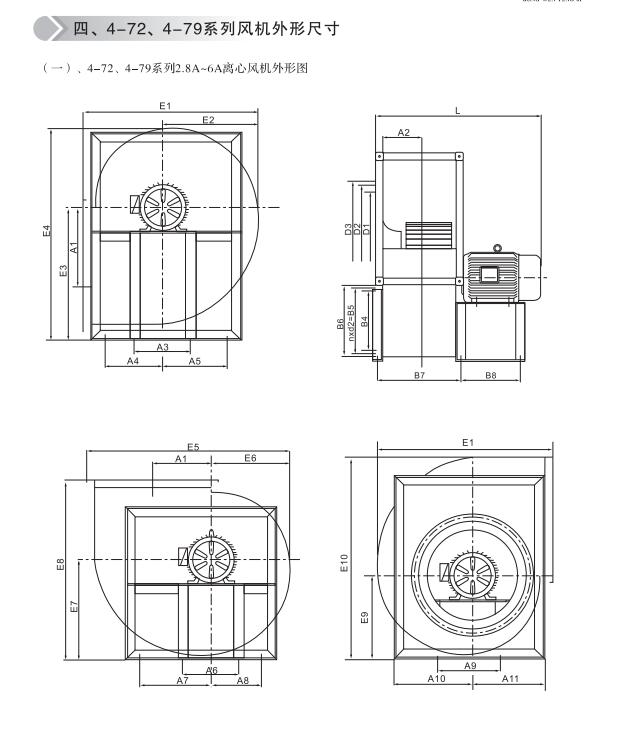
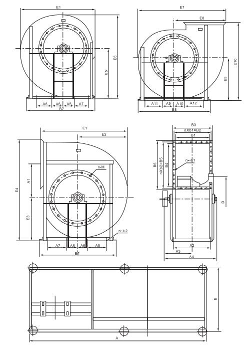
4-72,4-79系列离心风机
4-72,4-79系列离心式通风机,其效率和比A声缓均达到或优于机械工业部制定的A级标准,广泛应用于各类大中型工厂和民用建筑.,大型场馆等场所。 4-72. 4-79系列离心式逋风机作一般通风换气用,输送空气或其它不易燃易爆,无腐蚀性气体,气体内无粘性物质,所含的尘土及硬质颗粒不大于150mg/㎡,温度不超过80℃。 注:F4-72/79为防腐型离心风机。用丁输送有腐烛性的气体,用玻璃钢或钢制多遍防腐漆,不锈钢等为材料制作。 B4-72/79为防爆型离心风机,用广输送易燃易爆的气体,电机配用隔爆电机,防爆要求较低的采用钢制叶轮,防爆要求较高的使用铸铝叶轮。
4-72、4-79系列离心风机
1.4-72、4-79型离心风机概述
1、用途:4-72型离心风机可作为一般工厂及大型建筑的室内通风换气,输送空气或其它 不含易燃易爆、无腐蚀性的气体,气体内无粘性物质,所含尘土及硬质颗粒物不大干150mg/m³, 温度不超过80℃。 F4-72/79为防腐型离心风机,用于输送有腐蚀性气体,可用玻璃钢或钢板滚塑、不锈钢 等材质制作。 B4-72/79为防爆型离心风机,用于输送易燃易爆气体,电机配用隔爆型电机,铸铝叶轮 或非金属材料制成。 FB4-72/79为防腐防爆型离心风机,用于输送有腐蚀性且易燃易爆的气体。
2、型式:4-72离心通风机可制成左旋和右旋两种型式,风机的传动方式为A、B、C、D 四 种,6#以下采用A式;7-12#、采用C、D式;16#以上采用B式。
3、结构:机号6#以下的4 72型风机主要有叶轮、机壳、进风口等部分配直联电动机组成, 7#以上除具有上述部分外还有传动部分。 (1)叶轮:采用后倾翼型叶片、曲线型前盘组成。采用碳钢制造,并经过静、功平衡校正, 空气性能优良,效率高,运转平稳可靠。 (2)机壳:采用碳钢焊接制造,12#以下制成整体式,16#以上制成两开式,用螺栓连接。 (3)进风口:进风口制成收敛式流线型整体结构,装于风机的侧面,与轴向平行的截面为 曲线形状,能使气体顺利进入叶轮,且损失较小。 (4)传动组:传动部分又主轴、轴承箱、带轮或联轴器组成。
2.4-72、4-79型离心风机形式
风机分左旋和右旋两种型式,从电机(皮带轮)侧正视,叶轮按顺时针方向旋转为右旋, 逆时针旋转为左旋。A式为电机直联传动,B、C、E式为皮带传动,D式为联轴器传动。








PRODUCT
推荐产品
4-72,4-79系列离心风机
HTFC-I,II型前倾柜式离心风机
HTFC-I,II型前倾柜式离心风机
HTFC-V型后倾柜式离心风机
HTFC-V型后倾柜式离心风机
SWF型高效低噪声混流风机
SWF型高效低噪声混流风机
DFBZ(XBDZ)壁式轴流风机
DFBZ(XBDZ)壁式轴流风机
DWT-I屋顶轴流风机
DWT-I屋顶轴流风机
一种离心风机的制作方法
轴流风机的类型及应用领域
屋顶风机的起动调试
轴流风机的使用注意事项
防爆防腐轴流风机
防爆防腐轴流风机
屋顶风机的分类及技术特点
斜流风机的维护与保养常识
隧道射流风机
隧道射流风机
4-72,4-79系列离心风机
给大家讲一讲轴流风机的维护方法和安装的问题
DWT-IV型无电机涡轮排风机
DWT-IV型无电机涡轮排风机